un giorno qualcuno mi disse: " quattro ruote sono meglio di due!"
.. effettivamente aveva ragione
e ho comprato un'altra moto !!!

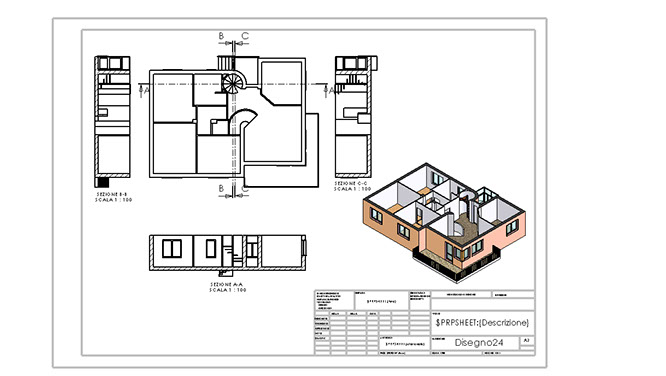
RISTRUTTURAZIONE

CASA CIVILE ABITAZIONE

POVO - TN

Il progetto in questione è ancora in fase di studio, qui di seguito alcune proposte per il recupero del piano terra sostituendo il garage e cantine con una unità abitabile, per la risistemazione degli spazi esistenti nei piani abitabili superiori con la formazione di un abbaino sulla falda a sud.

Designed by: BBBGroup