un giorno qualcuno mi disse: " quattro ruote sono meglio di due!"
.. effettivamente aveva ragione
e ho comprato un'altra moto !!!

RISTRUTTURAZIONE

CASA CIVILE ABITAZIONE

PERGINE VS. - TN

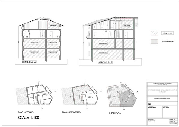
Questo intervento di "RISTRUTTURAZIONE EDILIZIA CON AUMENTO UNITA’ ABITATIVA E RIFACIMENTO COPERTURA" consisteva nel dividere un grande appartamento al 2° piano in due unità abitative distinte, ad una unità viene aggiunta una porzione del piano sottotetto, con cambio destinazione d' uso da soffitta a abitazione.

UNITA' A : piccolo appartamento formato da un ampio locale soggiorno/angolo cottura con la creazione di un nuovo poggiolo, stanza da letto, bagno e ripostiglio.

UNITA' B : appartamento costituito  da ingresso, bagno, soggiorno con angolo cottura, lavanderia e vano scala interno per accedere al piano sottotetto. Nel sottotetto, vano scale con disimpegno, due stanze matrimoniali, bagno principale e ripostiglio.

I lavori di cui si è richiesto Concessione Edilizia prevedevano :

 PIANO SECONDO :

-       Rafforzamento strutturale del solaio in legno-maltapaglia sottostante tramite connettori con sovrapposizione alla struttura esistente di una sottile soletta, ottenendo per i vecchi solai un cospicuo aumento di resistenza e rigidezza. L'interposizione dei connettori a piolo e ramponi tra le travi di legno e la soletta è necessaria per consentire ai due materiali di collaborare tra loro; il risultato sarà una struttura solidale e ne risulterà migliorato anche il comportamento dinamico (vibrazioni) e l' isolamento acustico.

-       Demolizione e rifacimento degli intonaci interni e dei rivestimenti in cartongesso. Nella realizzazione si cercherà di evitare un isolamento interno alle murature di materiale tipo cartongesso o simile, dando priorità di maggior isolazione ai nuovi serramenti, questo per abbassare la differenza isolante tra muratura e vetrata, diminuendo il movimento dell’aria interna a favore di una miglior vivibilità.

-       Creazione di nuovo poggiolo. Il poggiolo sarà costituito da struttura portante in legno di abete con modioni e tavolato in legno. A causa della presenza della sottostante tettoia della terrazza non di proprietà (di cui si allega autorizzazione dei proprietari) e la difficoltà dell’installazione del solaio, se necessario, si opterà per una soluzione formata da lame in ferro ancorate alla muratura con piastre e al solaio interno con rivestimento in lastre di  calciosilicato, per ottenere un effetto soletta di cls armato, uguale al poggiolo esistente. Il nuovo poggiolo servirà l’appartamento risultante dalla divisione che ne è sprovvisto. Il parapetto sarà in pvc finto legno con tipologia simile alla “trentina”, la stessa tipologia di parapetto sostituirà quella del poggiolo esistente come da disegni.

 -       Spostamento dei fori esistenti in altezza. I serramenti previsti saranno gli stessi esistenti che non verranno sostituiti, quindi non cambiando ne forma ne dimensione, assimilando così lo spirito della norma relativa ai fronti unitari di cui all’ art.46 delle Norme di Attuazione.  I fori esistenti hanno una altezza interna da pavimento media di cm. 73/77, i nuovi fori avranno il parapetto ad altezza minima di cm.100 e avranno le stesse dimensioni esistenti, senza quindi modificare gli assi del fronte esistente.

 -       Demolizione e rifacimento delle tramezzature. La nuova distribuzione interna non varia di tanto da quella attuale, malgrado la superficie venga divisa in due unità autonome. I muri perimetrali e quelli portanti interni – di spina e del vano scale – non verranno modificati in alcun modo. L’unità abitativa risultante ha già un accesso autonomo dal vano scale e la divisione interna permetterà un migliore sfruttamento degli spazi.

 PIANO SOTTOTETTO  :

 -       Demolizione e rifacimento del solaio sottostante. Il nuovo solaio verrà realizzato con travi in legno lamellare dimensionate come da calcoli statici, con sovrapposto tavolato e impianto di riscaldamento a pavimento, da valutarsi se a secco (senza la presenza di massetto) o tradizionale a serpentine annegate nel massetto, la pavimentazione sarà in piastrelle in ceramica o gres porcellanato. La travatura del solaio sarà predisposta per l’ ancoraggio di una scala interna di collegamento tra un appartamento del secondo piano e il sottotetto.

 -       Realizzazione di scala interna di collegamento tra un appartamento del secondo piano e il sottotetto. La scala verrà realizzata con una struttura portante con cosciali in ferro o legno, ancorati ove necessario, scalini in legno massiccio e parapetti in vetro o altro materiale.

 -       Demolizione e rifacimento della copertura con creazione di abbaino. La parte di proprietà della copertura verrà completamente sostituita, mantenendo le altezze interne e riutilizzando le tegole in cemento esistenti. Il nuovo tetto è previsto con  pacchetto areato con isolazione in fibra di legno e barriera al vapore. Lo spessore totale del pacchetto sarà di ca. cm.40. Tale spessore determinerà degli scalini in falda con la copertura esistente non di proprietà che non verrà sostituita, questo però non intaccherà la continuità della gronda esistente. La creazione di un abbaino adeguerà alle normative sulle altezze una delle due stanze matrimoniali, così facendo, su tutto il piano sottotetto e per ogni singolo vano avremo una altezza media ponderale superiore ai cm. 220. L’ abbaino previsto è una rivisitazione del tipo “a fronte tamponato” come da art.46 delle N.A..

In generale :

 -       Demolizione e rifacimento degli impianti elettrici ed idraulici serventi le unità abitative, Il tutto secondo le esigenze della committenza e seguendo la normativa vigente.

 -       Demolizione verticale a scavo ristretto di pietrame o altro materiale su facciata esterna per il passaggio tubature acque bianche e nere che andranno ad immettersi nel pozzetto “Firenze” esistente al piano marciapiede.

Documenti necessari per l'ottenimento della Concessione Edilizia

- TAVOLE DI PROGETTO - STATO DI FATTO, DI RAFFRONTO, DI PROGETTO

- RELAZIONE TECNICA

- RELAZIONE FOTOGRAFICA

- RELAZIONE STANDARD PARCHEGGI

- RELAZIONE CALCOLO VOLUME E ALTEZZE PONDERALI

- RELAZIONE PREVENZIONE DEGLI INFORTUNI PER CADUTA DALL’ ALTO

- RELAZIONE ABBATTIMENTO BARRIERE ARCHITETTONICHE

- RELAZIONE AUTORIZZAZIONE SCARICHI

- RELAZIONE PER IL CONTENIMENTO DI CONSUMO DI ENERGIA - legge 10/91

- RELAZIONE REQUISITI ACUSTICI PASSIVI

- RELAZIONE PER LA PROTEZIONE CONTRO LE SCARICHE ATMOSFERICHE

- PROGETTO IMPIANTO TERMICO

- DOCUMENTAZIONE PER L'ESONERO OBBLIGO QUANTITA' MINIME PARCHEGGI

- DOCUMENTAZIONE PER L'ESONERO ONERI DI URBANIZZAZIONE

 

Documenti necessari per l'ottenimento della NUOVA UNITA' IMMOBILIARE e conseguente dichiarazione di "prima casa".

- DICHIARAZIONE SUDDIVISIONE NUOVO SUBALTERNO - UFFICIO DEL CATASTO

- RICHIESTA NUOVA PORZIONE MATERIALE CON ATTO NOTARILE - UFFICIO TAVOLARE

- DICHIARAZIONE AVVENUTA VOLTURA CON ATTO NOTARILE - UFFICIO DEL CATASTO

- PIANO CASA MATERIALMENTE DIVISO (DIVISIONE MATERIALE) - UFFICIO DEL CATASTO

 

 

Designed by: BBBGroup